Типы конвейеров и их устройство

Сегодня начнем цикл статей на тему конвейеров. Я лично считаю, что конвейер, как промышленное приспособление, своим появлением на свет обязан Адаму Смиту с его теорией разделения труда. В ее основе закладывается максимальная отдача от работника, выполняющего основную работу на производстве. Так кто же будет перемещать заготовку от одного работника к другому? Конечно, сначала это выполнял дополнительный работник, но все что можно автоматизировать должно быть автоматизировано. Итак, Генри Форд пришел к конвейеру — машине, которая непрерывно перемещает грузы. Конечно, отдельно эта машина не может функционировать. Нужен кто то или что то, что загружает конвейер, а иногда и разгружает.
В этой вводной статье мы разберем, какие бывают конвейеры (разнообразие, типы), а так же в ознакомительной форме устройство конвейера.
Устройство конвейера.
В общем смысле слова конвейер — это непрерывно работающая машина для перемещения груза на свой рабочей поверхности из точки «А» в точку «Б». Упрощенно, устройство конвейера стоит рассматривать с двух аспектов.
- Первый — движущая сила конвейера. Это привод конвейера, его сочленение с движущимися деталями и собственно корпус или каркас конвейера, обеспечивающий правильное движение.
- Второй — рабочая поверхность. Та самая часть, которая перемещает грузы.
Типы конвейеров.
В первую очередь необходимо знать, что именно и на какое расстояние мы будем перемещать. От этого напрямую зависит тип конвейера. В горнодобывающей промышленности не зря применяются вагонетки. Использование конвейера было бы неоправданно.
Ленточный конвейер.
Принцип очень прост. Армированная текстильная или резиновая лента, в зависимости от Вашего техпроцесса, натянута на ролики, закрепленные в каркас. Вся эта конструкция приводиться в действие двигателем. Лента ползет, груз движется. Чем тяжелее груз, тем мощнее используемый двигатель. Для того чтобы груз не сваливался с ленты крайние ролики делают обычно чуть выше. Сцепление привода конвейера и ленты не жесткое. При превышении некоторого порога нагрузки лента прекратит движение. Можно немного усложнить задачу. Конечная точка конвейера находится выше начальной. Нет ничего проще: применяем ленту с ребрами. В этом случае груз никуда не денется.

С помощью ленточного транспортера так же можно перемещать сыпучие грузы. Благодаря такому множественному назначению и низкой цене ленточный конвейер является самым востребованным на рынке.
Пластинчатый конвейер.
Пластинчатый конвейер применяется, если вес груза очень высок, либо возникают другие подобные нагрузки. Например, на конвейер иногда заходят люди. Ну и естественно такой конвейер более устойчив к износу.

А вот сыпучие грузы не подходят для перемещения в этом типе конвейера. Максимум мелкоштучные изделия. Этот тип конвейеров обычно уже применяется с цепью. Цепь позволяет не проскальзывать приводу.
Цепной конвейер.
Приводу конвейера гораздо проще иметь сцепление с цепью, чем с ребристой или даже гладкой лентой. Но это накладывает некоторые ограничения на ролики конвейера. Вернее используются уже не ролики, а звездочки. Причем, чем больше цепь, тем сложнее используемые звездочки.
На цепи можно закрепить любой грузонесущий орган: лента, ковш, скребок …
Скребковый конвейер.
Отличительной особенностью скребкового конвейера является его «перевернутость». В обычных конвейерах рабочая поверхность располагается сверху. У этого конвейера она снизу. Он протаскивает своими скребками сыпучий или мелкоштучный груз по неподвижной поверхности. Причем подача груза может происходить в любой точке конвейера.
Подвесной конвейер.
Подвесной конвейер представляет собой цепь, перемещаемую вдоль потолка, на которой подвешены грузы.

Обычно применяется на производстве. Удобство заключается в том, что нет ограничения на нагрузку на пол около конвейера как в предыдущих случаях.
Рольганг.
Устройство рольганга принципиально отличается от других конвейеров. Тут нет рабочей поверхности. По сути это просто набор роликов, работающих синхронно.

Думаю, о рольгангах стоит написать отдельно.
Винтовой конвейер.
И напоследок рассмотрим один из самых древних типов конвейеров — винтовой. Смотрим на рисунок.

Ничего не напоминает? Да, да! Шнек обычной мясорубки — это пример винтового конвейера из быта.
Конечно, это можно применять в основном к сыпучим грузам. Этот тип конвейеров отличается крайне высокой износоустойчивостью и крайне низкой ценой. При некоторой точности деталей в нем можно транспортировать даже жидкость.
Могу добавить только одно. Если вы задумываетесь о покупке конвейера, значит вы — успешный человек.
Тема: Конвейеры
Операция
Закрытый скребковый цепной конвейер на Государственный коксохимический завод Bowen, Квинсленд, 1933 год.
Цепные конвейеры используют бесконечная цепочка как для передачи энергии, так и для продвижения материала по желобу, проталкиваемого либо непосредственно цепью, либо с помощью насадок на цепи. Цепь переезжает звездочки на обоих концах желоба. Цепные конвейеры используются для перемещения материала на расстояние до 90 метров (300 футов) и обычно до 30 метров (98 футов).:271
Цепь конвейеры использовать систему непрерывной цепи с приводом, несущую серию отдельных подвесок.[нужна цитата ] В цепь аранжировка осуществляется мотор, и материал, подвешенный на подвесках, перемещается. Цепные конвейеры используются для перемещения товары вниз сборочная линия и / или около производство или же складирование средство.
Цепные конвейеры в основном используются для транспорт тяжелые удельные нагрузки, например поддоны, решетчатые ящики и промышленные контейнеры. Эти конвейеры могут иметь конфигурацию с одной или двумя цепями. Груз размещается на цепях, трение тянет груз вперед. Цепные конвейеры, как правило, просты в установке и требуют минимального обслуживания для пользователей.
Многие отрасли промышленности используют технологию цепных конвейеров в своих производственные линии. В автомобильный промышленность обычно использует цепные конвейерные системы для транспортировки деталей автомобилей через краска растения. Цепные конвейеры также широко используются в производстве белой и коричневой продукции, металл отделочная и распределительная промышленность. Цепные конвейеры также используются в лакокрасочной промышленности, что упрощает нанесение краски. Продукты прикрепляются к цепному конвейеру, расположенному над головкой, поэтому они не касаются пола, что позволяет повысить производительность.
Устройство ЦК
Цепные конвейеры, с погружёнными скребками (рис.1), представляет собой средство транспортировки сыпучих материалов с различным гранулометрическим составом и содержит: закрытый продольный короб прямоугольного сечения, размещённую внутри него цепь со скребками, нижняя часть которых контактирует с днищем короба, блок привода звёздочек, натяжной блок цепи, загрузочные люки в верхней части короба и разгрузочные люки, снабжённые управляемым затвором, в нижней,

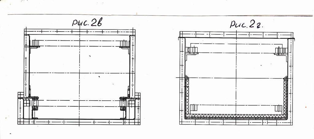
Поперечное сечение короба в сборе, в зависимости от свойств, транспортируемого материала может содержать:

- однорядную цепь со стандартными увеличенными поводками (рис. 2а);
- двухрядную цепь с износостойкими пластинами (рис.2б);
- двухрядную цепь со слоем материала в коробе для транспортировки клинкера (рис.2в) ;
- двухрядную цепь с футеровкой днища короба из расплавленного базальта (рис. 2г).

Блок привода звёздочек (рис.5) содержит: приводные звёздочки, уплотнения вала, опорные подшипники звёздочек, кронштейны опорных подшипников, фланец разгрузочного отверстия, очиститель цепи, крышку отверстий для чистки приводного блока и крышку корпуса приводной станции.
Натяжной блок цепи (рис.4) содержит: натяжное устройство, натяжную звёздочку, натяжные подшипники, уплотнение вала звёздочек, ограничитель натяжения, блок регулятора контроля частоты вращения, аварийный выключатель хода цепи, крышку корпуса натяжного блока.

Однорядные или двухрядные цепи, применяемые в ЦК, выполняются с помощью ковки или штамповки, что обеспечивает их высокую износостойкость.
Те места звёздочек, которые подвергаются износу, закаливаются до твёрдости, обеспечивающей их долговечность и высокую работоспособность.
Для обеспечения оптимального сочетания производительности и долговечности ЦК, скорость цепи принимается не более 0,3м/с.
Область применения цепных передач
Цепные передачи находят широкое применение во многих областях машиностроения, конструкциях сельскохозяйственных и дорожных машин, станкостроении и т. д.
Их применяют в станках, мотоциклах, велосипедах, автомобилях, промышленных роботах, буровом оборудовании, подъемно-транспортных, строительно-дорожных, сельскохозяйственных, полиграфических и других машинах, в нефтяном оборудовании для передачи движения между параллельными валами на значительные расстояния, когда применение зубчатых передач нецелесообразно, а ременных невозможно. Цепные передачи применяют при сравнительно больших межосевых расстояниях, когда зубчатые передачи невозможно использовать вследствие их громоздкости, а ременные передачи в связи с требованиями компактности или постоянства передаточного отношения. Преимущественное распространение имеют открытые цепные передачи, работающие без смазки, или с периодической ручной смазкой, с однорядными втулочно-роликовыми цепями, непосредственно встроенные в машины.
Цепные передачи наибольшее применение получили для передачи мощностей до 120 кВт при окружных скоростях до 15 м/сек.
Принцип действия и основные узлы скребкового конвейера
Скребковый конвейер – надежное приспособление, предназначенное для непрерывного перемещения порошкообразных, кусковых и гранулированных сыпучих грузов.

Среди его преимуществ можно выделить:
- возможность разгрузки в различных точках при помощи нескольких выпускных клапанов;
- меньшую (в сравнении с ленточным конвейером) площадь, необходимую для его установки;
- закрытую конструкцию, которая делает его пыле-, газо- и водонепроницаемым.
Такими транспортерами пользуются предприятия АПК, металлургической отрасли, угольной промышленности и т.д.
Принцип действия скребкового конвейера

В процессе транспортировки продукта всегда задействована только одна часть постоянно вращающейся цепи. По всей ее длине, на равном расстоянии друг от друга, размещены скребки. Они заталкивают груз по направлению к натяжной станции, проводят по днищу желоба и выталкивают к месту выгрузки материала. Затем полотно возвращается наверх через приводную станцию.
Если скребковый конвейер имеет горизонтальное положение, слой продукта может превышать высоту скребков. Это не помешает нижнему и верхнему слоям образовать единый поток, максимально возможная высота которого зависит от нижеперечисленных факторов.
- Плотностьпродукта. Если плотность имеет высокий показатель, то трение между слоями материала будет незначительным и транспортировка пройдет быстрее.
- Внешнее трение. Этот фактор зависит не только от свойств груза, но и от качества стенок желоба.
- Внутреннее трение. Чем меньше частицы продукта, тем ниже этот показатель.
Следовательно, скорость движения материала будет меньше у стенок желоба (из-за дополнительного соприкосновения с ними) и выше в центре потока. В случае применения вертикального скребкового конвейера или нории, необходимо также учитывать массу продукта.
Основные узлы скребкового конвейера

К основным узлам конструкции относятся: желоб, приводная станция, натяжная станция, комплекс скребков, став, тяговые цепи.

Желоб состоит из днища, крышки и двух боковых стенок. В верхней части движется цепь, в нижней – груз. Как правило, в вертикальных или наклонных моделях транспортеров между полотнами цепи устанавливается перегородка. Она предотвращает провисание нисходящей части под давлением массы содержимого. Приводная станция состоит из звездочки (она приводит полотно в движение) и двух валов с подшипниками. Натяжная станция также имеет звездочку и вращается за счет движения обратной ветви полотна. Натяжное устройство может состоять из автоматических нажимных пружин или ходового винта. В первом случае дополнительно применяется выключатель хода. Скребки крепятся на тяговых цепях. Они погружают материал и перемещают его со скоростью примерно 1 м/с, размещаясь на равном расстоянии друг от друга. Став соединен с натяжной и приводной секциями. Он представляет собой промежуточный сектор с расположенным внутри замкнутым тяговым механизмом. Тяговые цепи горизонтального транспортера оказывают давление только на нижнюю часть конструкции
Поэтому, важно, чтобы звенья были с плоскими скребками и перемещали содержимое впереди себя по всей длине конструкции. От этого зависит скорость транспортировки и ее качество. ООО «МХМ Украина» (г
Одесса) — официальный представитель 3БХунгария в Украине. К вашим услугам: индивидуальный подбор оборудования, доставка, шеф — монтаж, гарантийное и послегарантийное обслуживание
ООО «МХМ Украина» (г. Одесса) — официальный представитель 3БХунгария в Украине. К вашим услугам: индивидуальный подбор оборудования, доставка, шеф — монтаж, гарантийное и послегарантийное обслуживание.
Устройство цепных транспортеров
Назначение и конструкция цепных конвейеров предполагает их разделение на пластинчатые и скребковые. Пластинчатые конвейеры применяют для транспортирования материалов, нагретых до высокой температуры, большой массы и обладающих абразивными свойствами, а скребковые — для транспортирования сыпучих, зернистых и кусковых материалов. Cкребковsq конвейер состоит из шарнирно-пластинчатой цепи . К ней крепятся стальные скребки, предназначенные для транспортировки груза вдоль желоба. Ролики соединены с цепью и опираются на направляющие. Они необходимы для поддержания цепи. Привод питается от электродвигателя через редуктор и звёздочки.
Цепные транспортеры, которые устанавливают в горячих цехах, изготавливают из тугоплавкой стали, устанавливают термостойкий редуктор и электрооборудование. Есть возможность размещать материал сверху и снизу ветви (на крюках или магнитных подвесах).
Устройство скребкового конвейера представлено комплексом рабочих элементов, обеспечивающим необходимые рабочие характеристики транспортёра. Рассмотрим его основные элементы:
- Рештак (жёлоб). Этот элемент состоит из боковин и днища, на котором закреплены амортизирующие опоры. Желоба бывают штампованными или сварными. Также на рештаке установлено приспособление для колебаний днища.
- Став. Его конструкция собирается из рештаков, длина которых варьируется от 1 до 2,5 метров.
- Скребковая цепь конвейера. Деталь транспортёра служит для соединения скребков с приводом. Также Цепью принимается нагрузка от скребка.
- Скребки ─ пластины, прикреплённые к цепи и усиленные рёбрами жёсткости. Они транспортируют продукт, посредством передачи ему механического воздействия.
- Приводная станция представляет собой электрический двигатель и привод, передающий вращение. Привод состоит из шестерён или клиноременной передачи.
- Натяжная станция оснащена звёздочкой и состоит из автоматических нажимных пружин или ходового винта.
- Концевая головка также передаёт усилие на основной элемент агрегата.
В основном для изготовления комплектующих частей скребкового конвейера применяется нержавеющая сталь, так как этот материал устойчив и долговечен.
Типы цепных конвейеров

Варианты исполнения цепных транспортёров отличаются способом перемещения груза и тарой для этого процесса:
- скребковые (транспортировка сыпучих грузов);
- тележечные (секции для перемещения отдельных партий продукции);
- уборочные (для зернистых и мелкокусковых товаров);
- пластинчатые (горизонтальное перемещение и транспортировка под заданным углом или по сложной траектории).
Типы скребковых конвейеров
Встречаются различные типы скребковых конвейеров, поэтому их классифицируют по многим признакам. Основным признаком можно назвать назначение этого оборудования. Согласно назначению цепной транспортер может быть:
- подземным и использоваться на угольных и рудных шахтах.
- общего назначения и являться универсальным механизмом для работы в различных условиях
- специальным устройством. Такой вариант проектируется и монтируется в зависимости от эксплуатационных характеристик.
Проведём ещё одну классификацию: с учётом характера выполняемых функций:
- Транспортировка (доставка). Единственная функция агрегатов этого типа ─ перемещение груза на требуемое расстояние.
- Выемочные агрегаты.
- Тормозные устройства для спуска гуля с большой высоты при определенном угле наклона.
Устанавливаемый привод также является важной характеристикой производительности и качества работы механизма, поэтому отметим варианты исполнения привода:
- электрический ─ наиболее распространённый вариант, характеризирующийся высокой эффективностью. Привод имеет небольшие габариты, что гораздо упрощает монтажные работы и последующее обслуживание. Но такой вариант перегревается при повышении нагрузки, поэтому есть необходимость укомплектовывать его предохранителями.
- пневматический. Его работа заключается в подаче сжатого воздуха под давлением, поэтому агрегат передаёт значительное усилие. Недостатком является потеря мощности при появлении дефектах магистрали подачи воздуха и возникновение шума во время его работы.
- гидравлический ─ это система, в которой жидкость перемещается под давлением и может передавать большое усилие.
По типу основного элемента ─ цепи, выделяются три возможных исполнения конвейера: с разборной, круглозвенной цепью и роликовтулочной цепью.
Немного о звездочках
Эффективность и продолжительность работы всего цепного механизма будет в немалой степени зависеть от того, как были изготовлены звездочки в механизме. Это касается как соблюдения всех точных размеров, так и материалов изготовления.
Количество зубцов – одна из важнейших характеристик любой звездочки.
Натяжная звездочка используется там, где нужно предотвратить эффект провисания цепи. Обычно ее устанавливают на ведомых частях механизмов.
Главные параметрические характеристики звездочек описаны в соответствующих пунктах ГОСТа 13576-81.
Цепные виды передач – это действительно высокоэффективный и притом экономичный вид механизмов. Их используют во многих областях транспорта и машинного строения.
От чего зависит производительность цепного транспортера?
Учитывая, что важнейшим элементом этого оборудования являются цепи для конвейеров, именно им и нужно уделять особое внимание. Они различаются по способности выдержать определенную нагрузку и могут быть:
- одно- и двухрядными
- снабженными резиновыми накладками
- накопительными
- оснащенные дополнительными приспособлениями
Чтобы цепь могла выдержать высокую нагрузку, конвейер дополнительно оснащается жесткой стальной рамой.
В целом, любой цепной транспортер отличается высочайшей производительностью и надежен в любых условиях эксплуатации. Мы поможем подобрать оборудование, которое впишется в любую упаковочную линию, включая уже имеющуюся на предприятии, и в любой ситуации эта техника будет очень неприхотливой в использовании и обслуживании. Транспортеры и цепи для конвейеров в НПФ «Мастер сервис» предлагаются по оптимальной стоимости, а их изготовление и доставка осуществляются в кратчайший срок, что позволит вам оперативно укомплектовать производственную линию и начать работу с любой продукцией.
Цепные конвейеры
Для горизонтального перемещения зерновой массы или под углом, не превышающим 10 градусов используются цепные конвейеры. Цепные конвейеры могут изготавливаться с одной или двумя цепями, со скребками, погруженными в перемещаемый зерновой материал.
Конвейеры могут использоваться двухсторонние или односторонние, стационарного или передвижного типа. Перемещение зернового материала осуществляется волочением его по желобу с помощью укрепленных на цепи скребков. Сила трения в массе продукта обеспечивает перемещение не только той части насыпи, которую захватывают скребки, но и выше расположенного зерна по всей площади сечения короба.
Цепной конвейер, состоит из короба, с двух концов которого расположены приводная и натяжная станции с натянутой между ними цепью с закрепленными скребками. Нижняя часть цепи обеспечивает волочение зернового продукта. Выгрузка зерна из короба происходит через отверстие с задвижкой, проделанное в днище. В зависимости от конструктивной нагрузки для передвижения скребком может быть использована пластинчатая, втулочная или втулочно-роликовая цепь.
В легких конвейерах закрепление скребков может осуществляться на ленте, что позволяет исполнить их в передвижном или самоходном вариантах. Тяжелые конвейеры исполняются только цепными.
Основные достоинства цепных конвейеров: простота конструкции и небольшие габариты, что создает им преимущество перед ленточными конвейерами. Кроме того, цепной конвейер закрыт, из него не летит пыль, возможна их эксплуатация в простых транспортных галереях. Недостатки состоят в большей вероятности травмирования зернового материала, большей сложности монтажа и больших затратах электроэнергии. Это ограничивает использование цепных конвейеров для перемещения зерновой массы с производительностью, не превышающей 50-150 тонн в час. Изготовление цепных конвейеров большей производительности выполняется по индивидуальному заказу, при этом возможно обеспечить перемещение зернового материала на расстояние до 120 метров с производительностью большей производительностью. Использование таких мощных цепных конвейеров может объясняться невозможностью монтажа или эксплуатации ленточных конвейеров, при ограниченном пространстве или неблагоприятных погодных условий – сильных ветров.
Элеваторы, построенные до и в период 70-80-х годов прошлого века в большом количество оснащались цепными скребковыми конвейерами, которые в силу простоты конструкции продолжают эксплуатироваться по настоящее время.
Работа и устройство ленточного конвейера
Лента – рабочий орган конвейера, предварительно натягивается и соединяется. Силой трения между лентой и приводным барабаном она приводится в действия. Причем определяющим фактором является сила трения, за счет которой движется грузонесущий и тяговый орган. Для исключения прогиба ленты по длине конвейера устанавливают роликоопоры, на которые она и опирается во время движения. Как вы видите, устройство агрегата довольно простое. Интересным моментом является быстрота замены износившейся ленты. Делается это следующим образом: во время работы конвейера в месте стыковки грузонесущий орган распаривается и к нему, путем наклепки или вулканизации, крепят новую ленту. После того как приводной барабан делает полный цикл, закрепляется второй конец. Такой подход хорош тем, что практически нет простоя оборудования во время работы, так как монтаж осуществляется за несколько минут, хотя многое зависит от вида тягового органа. Для очистки ленты устанавливаются щетки, а во избежание перекоса используются центрирующие ролики. Устройство ленточного конвейера таково, что агрегат можно использовать во многих отраслях промышленности. Сейчас давайте пойдем дальше.
Достоинства и недостатки цепных транспортеров
Как и любое механическое оборудование, цепные перегружатели имеют сильные и слабые стороны. В зависимости от заданного технологического процесса необходимо производить подбор нужного в той или иной ситуации. Достоинства цепных конвейеров:
- высокая производительность;
- широкий диапазон мощностей;
- герметичный корпус, что исключает просыпание грузов;
- футерованный стальной корпус и рабочая поверхность.
Недостатки цепных перегружателей:
- массивная и габаритная конструкция;
- множество деталей и комплектующих подверженных износу за счет процессов трения;
- сложности в техническом обслуживании и производстве ремонтных работ;
- повышенный уровень шума при работе.

Цепные передачи
Общие сведения о цепных передачах
Цепная передача относится к передачам зацеплением с гибкой связью. Мощность в цепной передаче посредством многозвенной шарнирной цепи передается от ведущей к ведомой звездочке, размещенных на параллельных валах.
***
Классификация цепных передач
Цепные передачи классифицируют по типу применяемой цепи. В настоящее время применяют роликовые, втулочные и зубчатые цепи, которые, в свою очередь, могут быть однорядными и многорядными.

В роликовых и втулочных цепях зацепление звеньев со звездочкой осуществляется через ролик или втулку, при этом долговечность цепи возрастает, но возрастает ее масса и стоимость.
Зубчатые цепи набирают из пластин, при этом большое значение на эксплуатационные качества цепи имеет конструкция шарнира. В конструкцию входит направляющая пластина, предотвращающая сползание цепи со звездочки.
По сравнению со втулочными зубчатые цепи работают более плавно, обеспечивают большую кинематическую точность (плавность хода передачи), могут передавать бóльшую мощность, имеют высокий КПД, но их масса и стоимость значительно выше.
В зависимости от типа применяемой цепи зависит конструкция звездочек цепной передачи. Звездочки для втулочной и роликовой цепи представлена на рис. 2 слева, звездочка для зубчатой цепи – справа.
***
Достоинства цепных передач
По сравнению с зубчатыми передачами:
Преимущество цепных передач в сравнении с зубчатыми заключается в том, что они способны передавать движение между валами при значительных межосевых расстояниях (до 8 м).
По сравнению с ременными передачами:
По сравнению с ременными передачами (передачами трением) цепные передачи (передачи зацеплением) выгодно отличаются компактностью, способностью передавать бóльшие мощности при одинаковых размерах, постоянством передаточного числа и меньшей требовательностью к предварительному натяжению цепи (иногда предварительный натяг для цепных передач не применяется).
Кроме того, цепные передачи устойчиво работают при малых межосевых расстояниях между звездочками, тогда как ременная передача может пробуксовывать при малых углах обхвата шкива ремнем.
К достоинствам цепных передач можно отнести высокий КПД и безотказность при работе в условиях частых пусков и торможений.
***
Недостатки цепных передач
1. Значительный шум и вибрация при работе вследствие удара звена цепи о зуб звездочки при входе в зацепление, особенно при малых числах зубьев и большом шаге (этот недостаток ограничивает применение цепных передач при больших скоростях).
2. Сравнительно быстрое изнашивание шарниров цепи, необходимость применения системы смазывания и установки в закрытых корпусах.
3. Удлинение цепи вследствие износа шарниров и сход ее со звездочек, что требует применения натяжных устройств.
4. По сравнению с зубчатыми передачами цепные передают движение менее плавно и равномерно.
***
Область применения цепных передач
Цепные передачи находят широкое применение во многих областях машиностроения, конструкциях сельскохозяйственных и дорожных машин, станкостроении и т. д.
Их применяют в станках, мотоциклах, велосипедах, промышленных роботах, буровом оборудовании, подъемно-транспортных, строительно-дорожных, сельскохозяйственных, полиграфических и других машинах для передачи движения между параллельными валами на значительные расстояния, когда применение зубчатых передач нецелесообразно, а ременных невозможно.
Цепные передачи наибольшее применение получили для передачи мощностей до 120 кВт при окружных скоростях до 15 м/сек.
***
Конвейеры наклонные
Отличительной особенностью подобного варианта исполнения является расположение транспортировочной ленты под углом к горизонту. Особенности следующие:
- Принцип действия конструкции практически неизменен.
- Отличительные особенности заключаются в раме, которая позволяет регулировать угол наклона.
- Большинство моделей характеризуется наличием определенного ограничения, касающегося угла наклона, допустимого при транспортировке. Это связано с тем, что на поверхности ленты нет элементов, за которых могли бы зацепится изделия.
Наклонные изделия характеризуются универсальностью в применении. Он могут устанавливаться в помещении и под открытым небом, все зависит от типа применяемого материала при изготовлении.





































