Какие существуют насадки для бензопилы
На сегодняшний день разработано производителями и имеется в продаже большой выбор насадок для бензопилы. Если конкретнее, то для вашей пилы вы можете купить:
- Приставку лодочный мотор.
- Лебедку.
- Помпу.
- Мотобур.
- Дровокол.
- Приспособление для нарезки досок.
Если вы любите мастерить что-либо своими руками, то и тут пила станет отличным помощником, ведь её можно использовать как силовой агрегат для своих изобретений. Например, в видео ниже показано как из простой бензопилы можно сделать картинг для своего ребенка. Это очень интересно и не так сложно как кажется.
А в следующем видео показан самодельный снегоуборщик, двигателем которого является бензопила Штиль. Идея очень хорошая, но снегоуборщик немного не доработан, но все же способен облегчить уборку территории частного дома.
Теперь рассмотрим каждую из насадок подробнее, разберемся с плюсами и минусами использования, сделаем вывод о том, как использование приспособы влияет на ресурс бензопилы и её работоспособность.
Лодочный мотор
Насадка предназначена для установки на небольшие резиновые лодки имеющие транец. Характеристики:
- Передаточное число редуктора 1:2.
- Максимальная скорость в стоячей воде 20 км/ч.
- Винт трехлопостной диаметром 150 мм.
- Расход топлива 1 литр в час.
- Вес в собранном состоянии 8 кг.
Такие характеристики позволяют использовать насадку тем, кому не нужна высокая скорость передвижения по воде, а достаточно просто добраться из точки «А» в точку «Б». Она популярна у рыбаков, т. к. легкая и компактная, входит в багажник легкового авто.
В комплекте с насадкой поставляются все необходимые крепежи. Имеется инструкция по установке насадки и её правильному использованию.
Основное преимущество использования такой приставки для бензопилы, это экономия на покупке лодочного мотора.
Как установить бензопилу на насадку лодочный мотор вы можете узнать, посмотрев видео.
Лебедка
Еще одна полезная насадка для бензопилы – лебедка. С помощью неё можно поднимать грузы весом до полутора тонн. Обычная электрическая лебедка, для работы требует наличие электрического тока, что существенно снижает её возможности. Бензопила с лебедкой может использоваться в любом месте.

Имея такую насадку на заготовке дров, можно грузить стволы деревьев, раскряжёванные по несколько чурок. Также, при необходимости, такая насадка позволит вытащить застрявший легковой автомобиль, для грузовых авто она не подойдет.

Стоимость лебедки для бензопилы немного дороже, чем электрической, но её мобильность и удобство использования компенсируют разницу.
В продаже имеются несколько моделей лебедок для бензопил, которые могут отличаться длиной троса, размером и весом. В среднем, длина троса около 30 метров, вес не более 12 кг.
Как пахать землю при помощи бензопилы и лебедки, показано на видео. Преимущества данного способа в том, что таким образом можно обрабатывать землю на загородных участках, где нет возможности подключения электричества.
Помпа
Откачать воду из затопленного погреба, накачать бак воды для полива из колодца или просто перекачать воду из одного места в другое поможет специальная насадка, которая называется помпа для бензопилы.

Устройство довольно простое и не требует специальных навыков для установки на пилу. Её преимущество в мобильности и скорости подключения. Дополнительно к насадке потребуется приобрести шланги. Помпы, как и другие примочки на пилу выпускаются несколькими производителями, поэтому могут иметь различную производительность и другие характеристики.
Эта насадка универсальная и может устанавливаться на бензопилы различных моделей и марок. Тем, кто не привык платить за дополнительное оборудование к бензопиле, можно сделать помпу своими руками.
Мотобур
Еще одна полезная в быту насадка, это мотобур (ледобур). Вариантов этой приставки очень много, есть и самодельные. Она может быть полезна не только любителям зимней рыбалки, т. к. при помощи неё можно бурить ямы для установки столбов ограждения.

Преимущество по сравнению с электрическими вариантами в мобильности, т. к. бур можно использовать в независимости от наличия электричества.
В комплекте с буром для пилы поставляется переходная муфта, которая устанавливается вместо ведущей звездочки.
Дровокол
Толстые чурки тяжело раскалывать при помощи топора, для облегчения процесса на бензопилу можно устанавливать насадку дровокол. Она вкручивается в чурку и за счет конусообразной формы раскалывает её.
Разновидности самодельных пилорам из бензопилы

Существующий арсенал самодельных режущих агрегатов можно разделит на 2 обширные группы:
- стационарные пилорамы;
- мобильные.
Стационарная
В первой группе так же можно разграничить 2 основных подвида (неподвижный и подвижный) в зависимости от того, перемещается ли сам режущий компонент или стоит на месте.
В стационарной неподвижной пилораме подвижен лишь деревянный брус, который направляется вперед к режущему блоку. При таком техническом подходе обеспечивается высокое качество распила и геометрическая точность полученных распиловочных материалов.
В данном случае нет строгого лимита к габаритным параметрам заготовки, но уже в процессе конструирования неизбежна проблема с ее непосредственной подачей к распилочному полотну.
Мобильная
В подвижной пилораме, которая имеет стационарные опоры, сама пила будет перемещаться по направляющим, имеющим рельсовый механизм, а заготовка все это время будет иметь статичное положение в пространстве. Работа при этом упрощается в разы, но вот с размерностью заготовок придется поломать голову не один вечер.
Мобильные или переносные конструкции пилорам достаточно часто пополняют коллекции цехов по заготовке древесины. Их легко перемещать с места на место, однако и усилий для необходимого качества распила так же придется приложить намного больше. Полотно для распила перемещается по направлению к неподвижному бревну или балке, которая и выступает в роли непосредственной направляющей. Оператор в такой ситуации, помимо заботы о своей безопасности, вынужден постоянно следить за правильностью хода, что даже при самых лучших условиях все равно не обеспечит наивысшее качество обеих распиловочных поверхностей.
Но в обоих случаях конструкция берет начало с главного рабочего механизма пилы и не обязательно высокой мощности. Для бытовых целей будет достаточно среднемощного мотора и обычной режущей гарнитуры.
Пилорама из бензопилы своими руками
Дерево считается самым востребованным материалом для использования в повседневной жизни человека. Основной отраслью использования считается строительная, где востребованы доски и брусья. Также дерево используется для отделочных работ.
Современный рынок наполнен продвинутыми инструментами от ручных до стационалрных, которые позволяют обрабатывать дерево, вырезая нужные элементы с точностью до миллиметра. Примером такого инструмента является пилорама, позволяющая ровно распиливать бревно на заготовки. Недостатком пилорамы является ее высокая стоимость, поэтому владелец малого бизнеса и частник просто не в состоянии приобрести себе такой инструмент.
Идеальным решением проблемы является использование самодельного варианта на основе бензопилы, который по себестоимости получается гораздо дешевле, а по функциональности не уступает заводской конструкции. Такую самоделку нельзя использовать в промышленных масштабах на лесопилках, но он отлично подойдет для бытового использования.
Советы и рекомендации
- После сборки пилорамы немаловажным является тестирование на соответствие уровней и устойчивость всей конструкции.
- Для обеспечения точности распиловок целесообразно сделать разметку, для чего подойдет кусок старой рулетки, металлическая линейка.
- Цепи рекомендуется приобретать более долговечные — твердосплавные.
- Следует учесть, что должен быть свободный доступ для периодического натяжения цепи, поскольку при эксплуатации цепь растягивается довольно часто.
- На подвижной раме должна быть установлен защитный экран, подойдет любой прозрачный пластик.
- При изготовлении пилорамы из бензопилы обязательно нужно рассчитать, какой будет наибольшая и наименьшая длина бревен, чтобы короткие не провалились при распиловке, а длинные нормально зашли в направляющие.
- Не следует экономить на поворотных механизмах, управляющими положением бензопилы.
- Владельцам домашних пилорам следует помнить о необходимости строгого соблюдения требований техники безопасности при эксплуатации самодельной пилорамы из бензопилы.
- При выполнении пиления следует использовать приемы работы с бензопилой, учитывая при этом необходимость плавных движений, без принуждения и особых усилий.
Пилорамы из бензопилы: классификация самоделок
Разнообразие конструкторских решений, используемых для данного вида мототехники, поражает и одновременно радует. Ведь среди них всегда есть возможность выбрать наиболее подходящий вариант и по затратам, и по назначению приспособления.
В зависимости от локализации двигательной части самодельные пилорамы бывают:
- с вертикальной конфигурацией бензопилы;
- пилорамы горизонтального распила – имеют мобильный блок: именно по его горизонтальной плоскости и перемещается бензомоторная пила.
По признаку динамичности режущей части пилорамы выделяют:
- мобильные – пила двигается на встречу брусу, который неподвижен;
- стационарные – пильная гарнитура имеет постоянную локализацию (подвижен только лес, который к ней направляется).
Рассмотрим подробнее несколько вариантов пилорам из бензопилы сделанных своими руками.
Как сделать пилораму из бензопилы: пошаговая инструкция с чертежами
Чтобы изготовить самодельную пилораму в домашних условиях, потребуется подготовить материалы:
- инструмент, оборудованный бензиновым или электрическим мотором;
- направляющие швеллеры с высотой полки до 150 мм (длина зависит от размеров будущей установки);
- специальный механизм для передвижения инструмента или заготовки;
- стальной уголок, применяемый для усиления конструкции и изготовления фиксаторов заготовки;
- чертежи и схемы конструкции;
- сварочный аппарат;
- набор инструмента для соединения компонентов.
Последовательность шагов при изготовлении самодельной пилорамы шинного типа:
- Разметить швеллеры или иной металлический профиль для изготовления основания. Детали пилорамы свариваются между собой дуговой сваркой, для повышения жесткости и размещения фиксаторов бревна применяются дополнительные поперечные связи.
- Изготовить вертикальную раму, которая перемещается по основанию на роликах или шариковых подшипниках. К основному профилю устанавливаются дополнительные раскосы, повышающие жесткость конструкции. Опоры оснащены регулировочными болтами, позволяющими выбрать зазоры между внешней частью ролика и направляющей. Ширина рамы соответствует длине шины, установленной на пиле.
- Смонтировать на вертикальной раме механизм для регулировки положения пилы. В изделии нужно использовать специальный винтовой зажим, способный удержать пилу во время работы. Конструкция струбцины должна противостоять вибрациям и возможным ударным нагрузкам.
- Установить узлы, отрегулировать взаимное положение элементов и провести пробную распиловку. В процессе эксплуатации возможны поломки, которые потребуют доработки конструкции и введения дополнительных деталей, фиксаторов или регуляторов.
Описанный алгоритм изготовления пилорамы из бензопилы своими руками не является единственным вариантом конструкции. В свободном доступе имеются чертежи установок, созданных разными авторами, которые отличаются конфигурацией узлов или способами регулировки положения. Конструкторы снимают свои изделия на видео, которое можно посмотреть на специализированных сайтах.
Например, упрощенная самодельная пилорама из бензопилы состоит из отрезка швеллера, на котором установлена переходная плита с закрепленным инструментом. Установка монтируется на деревянный брус (он же является и заготовкой), уложенный на опоры. После каждого запила инструмент перемещается на расстояние, равное толщине изготовляемой доски. Недостатком конструкции пилорамы является неустойчивость, при опрокидывании установки существует риск травмирования оператора.
Дисковые установки собираются на базе электрического двигателя, допускается применение бензинового агрегата для вращения диска. Мотор крепится на раме через штатные точки крепления, в основании оборудования находится прямоугольный или квадратный узел, изготовленный из швеллера. В конструкции предусматривается стальной защитный кожух, закрывающий верхнюю часть диска. Рекомендуется установить малогабаритный переключатель, не позволяющий включить двигатель с открытым щитком (только для модификации с электрическим двигателем).
Для бытовых пилорамных установок рекомендуется использовать стальные дисковые пилы диаметром 500-600 мм. Рабочий элемент монтируется на выходной валик ротора двигателя, допускается использование повышающего редуктора с ременным приводом. Регулировка натяжения производится смещением корпуса мотора на основании. При изготовлении элементов конструкции рекомендуется располагать рабочую кромку диска на минимальном расстоянии от основания. Встречаются конструкции со специальным пазом в основании, предназначенным для вращающегося диска.
Виды и особенности пилорам из бензопилы
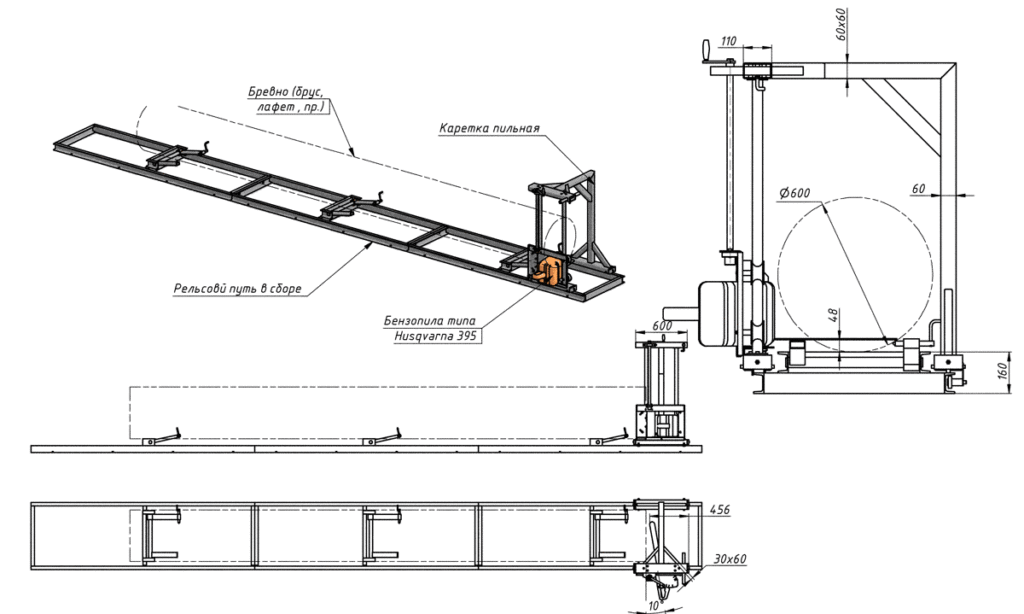
Строительные рынки предлагают большой выбор пилорам, в основу которых входит бензопила. Закрепленный в тележке с роликами агрегат можно вручную передвигать по заранее проложенному рельсовому пути. Для заготовки древесины может быть использована мощная цепная или ленточная бензопила.
Цепной агрегат используется для распила круглого леса. В его конструкцию входит пильная цепь, после работы которой остается большое количество опилок. Это является основным недостатком такого вида пилорамы.
Ленточные бензопилы способны распилить бревна достаточно большого диаметра
Работая на такой пилораме, следует иметь в виду, что вокруг нее на большую площадь разлетаются опилки, поэтому необходимо соблюдать осторожность. Справиться с этой проблемой поможет подключенный к стружкоотсосу гибкий воздуховод
Для бытовых условий большие пилорамы чаще всего не требуются, поэтому оптимальным решением будет изготовление функционального самодельного мини-станка. Такой агрегат будет иметь небольшие размеры, в связи с чем его легко можно будет при необходимости перемещать.
Чаще всего в качестве основного элемента подобного устройства выступает бензопила, которую можно приобрести в специализированном магазине или использовать агрегат марки «Урал».
Как сделать пилораму из бензопилы: пошаговая инструкция с чертежами
Чтобы изготовить самодельную пилораму в домашних условиях, потребуется подготовить материалы:
- инструмент, оборудованный бензиновым или электрическим мотором;
- направляющие швеллеры с высотой полки до 150 мм (длина зависит от размеров будущей установки);
- специальный механизм для передвижения инструмента или заготовки;
- стальной уголок, применяемый для усиления конструкции и изготовления фиксаторов заготовки;
- чертежи и схемы конструкции;
- сварочный аппарат;
- набор инструмента для соединения компонентов.
Последовательность шагов при изготовлении самодельной пилорамы шинного типа:
- Разметить швеллеры или иной металлический профиль для изготовления основания. Детали пилорамы свариваются между собой дуговой сваркой, для повышения жесткости и размещения фиксаторов бревна применяются дополнительные поперечные связи.
- Изготовить вертикальную раму, которая перемещается по основанию на роликах или шариковых подшипниках. К основному профилю устанавливаются дополнительные раскосы, повышающие жесткость конструкции. Опоры оснащены регулировочными болтами, позволяющими выбрать зазоры между внешней частью ролика и направляющей. Ширина рамы соответствует длине шины, установленной на пиле.
- Смонтировать на вертикальной раме механизм для регулировки положения пилы. В изделии нужно использовать специальный винтовой зажим, способный удержать пилу во время работы. Конструкция струбцины должна противостоять вибрациям и возможным ударным нагрузкам.
- Установить узлы, отрегулировать взаимное положение элементов и провести пробную распиловку. В процессе эксплуатации возможны поломки, которые потребуют доработки конструкции и введения дополнительных деталей, фиксаторов или регуляторов.
Описанный алгоритм изготовления пилорамы из бензопилы своими руками не является единственным вариантом конструкции. В свободном доступе имеются чертежи установок, созданных разными авторами, которые отличаются конфигурацией узлов или способами регулировки положения. Конструкторы снимают свои изделия на видео, которое можно посмотреть на специализированных сайтах.
Например, упрощенная самодельная пилорама из бензопилы состоит из отрезка швеллера, на котором установлена переходная плита с закрепленным инструментом. Установка монтируется на деревянный брус (он же является и заготовкой), уложенный на опоры. После каждого запила инструмент перемещается на расстояние, равное толщине изготовляемой доски. Недостатком конструкции пилорамы является неустойчивость, при опрокидывании установки существует риск травмирования оператора.
Дисковые установки собираются на базе электрического двигателя, допускается применение бензинового агрегата для вращения диска. Мотор крепится на раме через штатные точки крепления, в основании оборудования находится прямоугольный или квадратный узел, изготовленный из швеллера. В конструкции предусматривается стальной защитный кожух, закрывающий верхнюю часть диска. Рекомендуется установить малогабаритный переключатель, не позволяющий включить двигатель с открытым щитком (только для модификации с электрическим двигателем).
Для бытовых пилорамных установок рекомендуется использовать стальные дисковые пилы диаметром 500-600 мм. Рабочий элемент монтируется на выходной валик ротора двигателя, допускается использование повышающего редуктора с ременным приводом. Регулировка натяжения производится смещением корпуса мотора на основании. При изготовлении элементов конструкции рекомендуется располагать рабочую кромку диска на минимальном расстоянии от основания. Встречаются конструкции со специальным пазом в основании, предназначенным для вращающегося диска.




Как сделать самодельную пилораму из бензопилы своими руками?
Для того, чтобы правильно разобраться с чертежами и схемами, нужно понимать, какие типы самодельных пильных установок существуют и в чем их отличия. Так, различают мобильные пилорамы и стационарные, которые, в свою очередь, разделяются на подвижные и неподвижные.

В мобильной пилораме из бензопилы пилящая часть движется по бревну, ее можно переносить в любое удобное место. Направляющей выступает ваша заготовка, что обеспечивает более простое использование и легкую конструкцию. Единственным минусом, которым обладает мобильная пилорама — необходимость постоянного контроля размерности хода.
Стационарные же обладают более качественным резом и высокой точностью и правильностью распиловки. В неподвижных установках двигается сама заготовка по направлению к пиле. Подвижная, в свою очередь, имеет рельсовые направляющие, благодаря которым двигается пила, а заготовка остается неподвижной. Данная конструкция отличается простотой сбора и использования, но вот длина заготовки ограничена.
Чертежи аналогов Логосоль
Имея в наличии чертежи и изучив видеоинструкцию, самостоятельно изготовить конструкцию для обработки бревен, досок и реек довольно просто. Перед началом работ необходимо выбрать подходящее место. Установить пилораму из бензопилы можно в старом сарае, гараже, ангаре или даже просто под навесом. Если помещение для агрегата будет закрытым, то следует позаботиться о вытяжке.
Для изготовления конструкции кроме бензопилы понадобятся:
- два швеллера длиной в 8 метров и высотой в 140-180 миллиметров;
- две рельсы;
- уголки 50х100 мм и 40х40 мм;
- отрезки водопроводной трубы в 25 см в качестве стяжек;
- плита из стали толщиной в 4-6 см и длиной в 60 см;
- подвижные шланги;
- трубы с диаметром в 35-40 мм.
Изготовление своими руками пилорамы следует начинать со сборки основания из перевернутых подошвой вверх рельс и уголков 50х100 мм. Устанавливаться они должны строго параллельно полу, поэтому нужно воспользоваться строительным уровнем.
Далее выполняются следующие работы:
- По длине основания, согласно чертежу, сверлятся отверстия с шагом в 1-1,5 метра и диаметром в 14-16 мм.
- Затем по количеству отверстий берутся стяжки, которые соединяются при помощи болтов.
- Из металлических угольников изготавливаются стойки и на них ставится основа. Расстояние между крайними стойками и основой должно быть около 100 см.
- Чтобы конструкция была более жесткой, раскосы между стойками можно приварить.
После того как основа будет выполнена и установлена, необходимо своими руками сделать подвижную тележку. Для этого
40х40 мм и изделие ставится на ролики или подшипники. Сверху плиты приваривается два уголка, к которым крепится бензопила.
Первый вариант самодельной пилорамы из бензопилы готов. Существует еще один способ изготовления своими руками агрегата для обработки древесины. Инструменты и чертеж для него понадобятся те же, однако, сама конструкция более доработана.
Дополнительно: Бензопилы Урал — модели их характеристики, особенности
Состоит конструкция из четырех главных узлов:
- Пилы с приводом.
- Механизма для регулирования толщины изготавливаемой доски.
- Механизма для передвижения пильной части конструкции.
- Устройства для фиксации бревен.
Так как бензопила с рабочим двигателем и режущими зубьями в уже есть в наличии, необходимо будет сделать своими руками только оба механизма и устройство для фиксации бревен.
Механизм для регулирования толщины досок.
Распиливаются бревна посредством поднимания или опускания основания, которое должно быть приварено к пластине с помощью четырех гаек с согнутыми краями. Вверху этого устройства необходимо установить контргайки, которые нужно затягивать после того, как агрегат будет настроен на нужную толщину обрабатываемого материала.
Механизм для передвижения пилы.
Устройство для фиксации бревна.
На таком агрегате бревна крепятся с помощью двух гребней – неподвижного и перемещающегося посредством винта. После того как материал для обработки будет установлен, перемещающийся гребень винтами закрепляется в неподвижном состоянии. Теперь можно начинать смело эксплуатировать самодельную пилораму, выполненную из бензопилы.
На фото представлен чертеж, где обозначены основные части конструкции
В первую очередь собираем основание, состоящее из двух рельс. Их переворачивают дном вверх и крепят к ним большие уголки. Крепить необходимо параллельно полу, причем желательно удостовериться в параллельности при помощи уровня, чтобы достигнуть большей точности.
Начинаем изготавливать стойки, которые будут держать основу. Чтобы самоделка была жесткой и не шаталась, прихватите сваркой уголки между стойками. Не забудьте приварить защиту на шину.
По завершению работ с основой, приступаем к передвижной тележке. Берется стальная пластина и внизу нее приваривается маленький уголок, а потом само изделие устанавливается на колесики, ролики или подшипники. Сверху нужно приварить два уголка, которые станут держателями пилы.
Портативная минипилорама по чертежу готова. На фото видно простую конструкцию
Чертежи пилорамы своими руками
По чертежам сразу скажу, под каждый случай делаются индивидуальные чертежи. Ведь я же не знаю какой именно вы бензопилой будете пользоваться. Второе это мне не известно какой материал у вас имеется, я напишу к примеру уголок, а у вас имеется труба, которая вполне сгодится. Поэтому расчерчиваем всю схему, за основу беря выше показанные чертежи.
Как работать на самодельной пилораме
Алгоритм самостоятельной распиловки на стационарной установке с подвижным инструментом:
- Уложить бревно или готовый брус на направляющие поперечины. При необходимости заготовку фиксируют зажимами винтового типа или стальными косынками, которые фиксируются на поперечинах.
- Отрегулировать положение пилы на подвижной раме. Затянуть точки крепления инструмента и проверить надежность устройства для фиксации.
- Дозаправить резервуары для топлива и масла, которое необходимо для смазки цепи.
- Запустить мотор и прогреть агрегат на холостых оборотах, а затем подвести полотно к торцевому срезу заготовки.
- Поднять обороты до рабочего диапазона (определяется на слух) и зафиксировать положение курка, управляющего дроссельной заслонкой. Для удержания элемента применяется струбцина или самодельное приспособление.
- Приступить к выполнению горизонтального запила, перемещая инструмент с равномерной скоростью. При работе необходимо быть осторожным, поскольку существует риск возникновения ударной нагрузки при контакте полотна с уплотненными участками древесины (зона прорастания сучьев).
- На следующем этапе пила отводится на расстояние, равное толщине будущей доски и операция повторяется заново. При работе требуется проверять уровень масла в бачке, при эксплуатации цепной пилы без подачи смазки начинается интенсивный износ рабочих кромок.
При эксплуатации дисковой установки бревно укладывается на нижнюю раму установки, а затем плавно подается в направлении вращающегося рабочего органа. Рекомендуется применение направляющего элемента, предотвращающего уход бревна вбок. Аналогичным образом распускается древесина на установках, оборудованных ленточной пилой.
При эксплуатации самодельной пилорамы требуется применять средства индивидуальной защиты (очки, наушники), предохраняющие глаза и органы слуха от травм. Рекомендуется использовать специальную одежду и рукавицы из плотного материала, способные защитить руки от повреждений острыми фрагментами древесины. Часть пользователей устанавливает на самодельные установки защитные щитки из органического стекла, которые отражают поток опилок от рабочего полотна.
Приступаем к креплению бура
Конечно, как и мотор, дрель должна быть жестко закреплена. Но это сделать намного проще. Чтобы исправить это, можно взять шланг и таким шлангом соединить редуктор и дрель, а затем зафиксировать эти соединения. Большим преимуществом этой конструкции является то, что сверло можно заменить при необходимости (например, вам может потребоваться просверлить отверстие другого размера).
Также можно попробовать сделать «продвинутое» сверло, в котором будет возможность не только горизонтального бурения, но и вертикального. Для этого потребуется еще одна рама (металлическая труба) с приваренным отрезком вертикальной трубы.
К корпусу, который был изготовлен в первую очередь, необходимо приварить побольше металлических колец. Эти кольца должны без зазоров входить в подседельную трубу. Теперь вся обновленная конструкция размещается на бурильной трубе. Можно начинать сверление.
Такая «продвинутая» дрель имеет два преимущества: во-первых, становится возможным вертикальное бурение, а во-вторых, бурение становится намного удобнее. Однако есть и два недостатка: во-первых, она становится тяжелее, а во-вторых, при очень глубоком сверлении бурильная труба будет мешать.
Второй минус можно устранить, сделав направляющую трубку сверла из деталей, выступающих друг от друга. Разумеется, между этими частями не должно быть зазора, но они должны переходить друг в друга. Да и конструкция станет еще тяжелее.
Вы также можете сделать возможным пробивать под определенным углом. Но необходимость в таком сверлении возникает настолько редко, что об этой проблеме лучше специально не задумываться.










Этапы самостоятельного изготовления
Лесопилка нуждается в наличии специального деревообрабатывающего оборудования — пилорамы. Можно купить ее уже готовую в магазине, но это будет стоить довольно дорого. Поэтому вопрос, как сделать пилораму в домашних условиях, остается актуальным.
Самодельное устройство из бензопилы
Приспособление для распиловки бревен бензопилой своими руками — наиболее распространенный вариант изготовления этого типа оборудования дома. Процесс занимает немного времени, а самоделка способна работать длительное время без ремонта.
Для работы понадобятся такие материалы:
- сварочный аппарат с электродами;
- шурупы;
- гвозди;
- столбики;
- электропила;
- роликовые подшипники.
Перед тем как сделать пилораму своими руками, специалисты советуют обратить внимание на такие моменты:
- Если планируется распиливать бревна большого диаметра, необходимо для работы использовать более мощные пилы с длинной цепью и шиной.
- Для подачи тяжелой древесины необходимо предусмотреть наличие специального домкрата. Доска же будет приниматься посредством использования погрузчика.
- При работе необходимо продумать механизм для фиксации бревен. Это предупредит вибрацию рабочего материала.
- Бензопила должны быть довольно мощной, что поможет сделать распиловку быстрее и проще.
- Станок рекомендуется оборудовать электрическим двигателем. Это поможет сэкономить затраты на производство.
- Приспособление для бензопилы продольной распиловки своими руками должно иметь такую высоту, при которой у оператора не будет уставать спина и руки.
Самодельная пилорама из бензопилы, чертежи которой можно найти в специальной литературе, довольно проста в изготовлении. Изготовление проводится по такой схеме:
- Создать каркас посредством сваривания уголков или труб в конструкцию необходимого размера;
- Для выполнения салазок можно использовать деревянные доски, которые в месте движения салазок покрываются оцинкованным листом или нержавейкой. Можно также использовать для этого уголок, по которому будут двигаться ролики. Есть также возможность выполнения этого устройства из рельсов. Все зависит от нагрузки, которой будет подвергаться станок;
- Изготовить салазки можно из 50 мм доски;
- Изготовление механизма, который будет регулировать толщину доски. Можно использовать вариант, который предлагают специалисты компании «Логосоль». В нем происходит движение рабочего материала, а режущий элемент закреплен неподвижно. Такая конструкция подходит для работы с небольшими бревнами.
Можно также использовать вариант, при котором бревно остается неподвижным, а режущая часть станка двигается по специальной линейке. Монтаж бензопилы выполняется при помощи специальных креплений на станине оборудования.
По завершении работы необходимо проверить прочность станка и выполнить наладку его функций.
Приспособление из болгарки
Есть также возможность изготовления пилорамы в домашних условиях, основой для которой служит болгарка. Этот вариант станка обладает практичностью эксплуатации и простотой выполнения. Для выполнения оборудования можно придерживаться такой инструкции:
- Упор изготавливается из уголков, расположенных по сторонам каркаса. Их края необходимо закруглить.
- На корпус надевается хомут из металла и закрепляется винтами по краям.
- Ручка выполняется самостоятельно из металлического прута, трубы или поперечной скобы.
- Для выполнения регулировочной штанги можно использовать стальной прут диаметром 0,4 — 0,6 см. Его конец загибается в виде петли.
- Чтобы обеспечить вхождение штанги в ручку, необходимо на задней части ручки нарезать небольшую резьбу.
Болгарка представляет собой углошлифовальную машинку. Поэтому необходимо учитывать такие моменты:
- Продолжительность непрерывного использования самодельной пилорамы из болгарки не должна превышать 20 минут, чтобы избежать перегревания мотора станка;
- Стандартная защита диска не подходит для самодельного устройства. Необходимо изготовить защитный кожух своими руками.
Перед началом эксплуатации этого вида пилорамы, мобильный цепной механизм нуждается в предварительной проверке и регулировке. Глубину пропила можно отрегулировать при помощи гаек, которые или затягиваются, или отпускаются. Ручной вариант пилорамы отличается простотой конструкции. Это значительно упрощает работу с ней.
Originally posted 2018-07-04 07:46:16.





































